Landeshauptstadt Dresden - www.dresden.de

https://www.dresden.de/de/stadtraum/zentrale-projekte/alter-leipziger-bahnhof/phase1/1110_FAM-Architekten-mit-NUWELA-Buero-fuer-Staedtebau-und-Landschaftsarchitektur.php 20.03.2024 11:09:50 Uhr 29.01.2026 22:52:58 Uhr

1110_FAM Architekten mit NUWELA Büro für Städtebau und Landschaftsarchitektur

In der ersten Phase des Wettbewerbs zum Alten Leipziger Bahnhof konnten sich alle Büros mit entsprechender beruflicher Qualifikation bewerben und einen ersten Entwurfsansatz zur konkreten Aufgabenstellung entwickeln. Insgesamt gingen 39 Entwürfe in die weitere Wertung ein – einen davon sehen Sie hier.

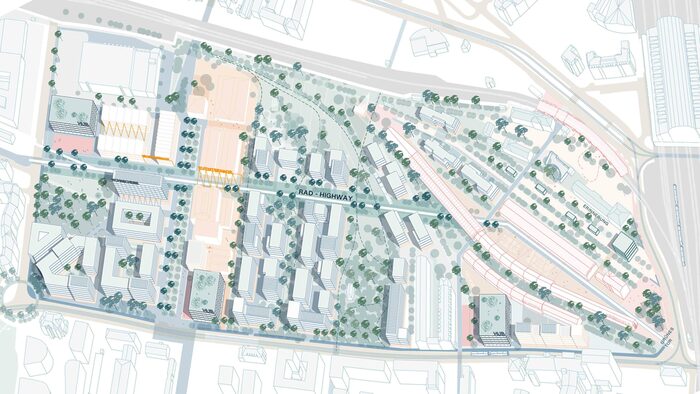
Zu sehen ist die Visualisierung eines möglichen Entwurfs des neuen Quartiers Alter Leipziger Bahnhof der Büros FAM Architekten mit NUWELA Büro für Städtebau und Landschaftsarchitektur.
Visualisierung eines möglichen Entwurfs des neuen Quartiers Alter Leipziger Bahnhof

Beschreibung des Entwurfs

Grundidee und übergeordnete Strukturen/Vielschichtigkeit als Qualität 

Geprägt durch die historisch bedeutsamen Flächen des Alten Leipziger Bahnhofs erstreckt sich das Entwicklungsareal entlang der Leipziger Straße zur Erfurter Straße. Die im Gebiet vorgefundenen Elemente, Relikte und Schätze (baulich wie freiräumlich) liegen dem Entwurf als vielschichtiges, strukturelles Gerüst zugrunde.

Dem Masterplan folgend befindet sich als übergeordneter Ankerpunkt im Gebiet eine Eventspange im Bereich des alten Schlachthofs. Der Entwurf sieht zudem – unter Berücksichtigung der gewachsenen Vegetation vor Ort – eine große zusammenhängende Grünfläche vor, die die Orangerie mit einbindet und gleichzeitig die Tiefe des Gebiets zu den Gleisen nutzt. So entstehen allein durch das Grundgerüst regelmäßige Anknüpfpunkte über die Leipziger Straße. In gleicher Richtung orientieren sich zwischen Bahngelände und Eventspange neue Wohnquartiere. Über Wohnallmenden werden an drei Achsen alle Gebäude von innen heraus erschlossen, sodass ein Wohnen direkt im Grünen ohne infrastrukturelle Querungen ermöglicht wird. Nördlich der Eventspange bilden sich aufgelöste Wohnhöfe und Solitärbauten, die sowohl Rücksicht auf den Baumbestand nehmen als auch zum Gewerbe vermitteln.

Erschließung/Place Making/Anknüpfung an die Stadt

Der Auftakt des alten Leipziger Bahnhofs bildet sich als weicher und vor allem freiräumlich geprägter Stadtraum aus. Um dem historischen Charakter der Güterschuppen und der alten Gleisanlagen gerecht zur werden, wird baulich nur sehr behutsam ergänzt. Die Räume der Gleisbögen werden vielfältig aktiviert und öffnen das Quartier zur Hansastraße. Spannungsvolle Blickbeziehungen und bewusste Wegeführungen erschließen das Areal.

Der Fahrradschnellweg samt fußläufigem Boulevard durchquert tief im Grundstück liegend alle wesentlichen Bereiche des Entwurfsgebiets und verbindet die dem Gebiet eingeschriebenen heterogenen und vielfältigen (Nutz-)Räume miteinander. In Verlängerung der Gehestraße verläuft der Highway parallel zur Leipziger Straße und führt über das alte Bahnhofsareal in die Innenstadt. Neben dem nördlichen Auftakt über die Eventspange prägt vor allem der Verlauf durch die ruderalen, ökologisch wertvollen Bestandsvegetationen den Charakter dieses Rückgrats aus. 

Drei dezentral platzierte HUBs nehmen den Verkehr direkt von der Leipziger und der Erfurter Straße auf und garantieren eine weitgehende Autofreiheit im Quartiersinneren. Mit öffentlich wirksamen Erdgeschossen und aktivierten Dachflächen bilden sie neben Parkmöglichkeiten und geteilten Mobilitätsangeboten auch Orte der Begegnung.

Hinweis: PDF nicht barrierefrei. Kontaktieren Sie uns gern, wenn Sie Unterstützung benötigen.
Anzeige

Partner