Landeshauptstadt Dresden - www.dresden.de

https://www.dresden.de/de/stadtraum/planen/stadtentwicklung/stadterneuerung/foerderprogramme-eu/efre/dresden-nordwest/efre-gebiet-dresden-nordwest-_Park-an-der-Gehestrasse.php 07.08.2020 10:48:32 Uhr 29.01.2026 20:49:50 Uhr

Park an der Gehestraße

Handlungsfeld Energieeffizienz

Baustart für neuen Park an der Gehestraße

Am Montag, 22. Juli 2019, beginnen die Arbeiten für einen neuen öffentlichen Park an der Gehestraße. Er entsteht zwischen Moritzburger Platz und der Erfurter Straße, auf einer ehemaligen Fläche eines Güterbahnhofes. Sie ist etwa 30 Meter breit und rund 550 Meter lang. Geplant sind Grünflächen, ein Spielareal, Treffpunkte, ein Stadtplatz und ein Bürgergarten. 88 Bäume und über 70 Solitärsträucher kommen in die Erde. Gepflanzt wird bienenfreundlich. Auf früchtetragende Wildgehölze und klimaneutrale Bauweise wird viel Wert gelegt. Großflächige Stauden-, Rasen- und Wiesenflächen und ein 1 000 Quadratmeter großer Bürgergarten sollen entstehen.

Das Projekt wird in vier Abschnitten umgesetzt. Erster Schritt sind Arbeiten zwischen Moritzburger Platz und dem Fuß- und Radweg in Höhe Konkordienstraße. Diese Arbeiten übernimmt die Firma Hoch + Tief Dresden GmbH & Co. AG. Die Baukosten dafür betragen knapp 240 000 Euro. Im Schritt 2 ist der Bau des Stadtplatzes an der Erfurter Straße/Ecke Gehestraße sowie die Fußwegangleichung geplant. Schritte 3 und 4 folgen im Herbst. Unter anderem wird hier der Bau der Spielanlage vergeben.

Für den gesamten Park werden Kosten von über 1,4 Millionen Euro erwartet. Das Projekt wird durch EU-Fördermittel aus dem Fonds für regionale Entwicklung (EFRE) aus dem Stadtteilentwicklungsprojekt Dresden-Nordwest gefördert.

Bei der Gestaltung der Parkanlage wurden die Bürger beteiligt. Bereits im September 2016 fand eine öffentliche Planungswerkstatt mit interessierten Einwohnerinnen und Einwohnern zur Gestaltung des Grünzuges an der Gehestraße statt. Im Januar 2018 stellte das Planungsbüro PRUGGER Landschaftsarchitekten das Projekt im Stadtbezirksamt Pieschen vor.

Die Grünanlage soll das Gebiet städtebaulich und ökologisch aufwerten, die Aufenthaltsqualität steigern und die CO2-Werte unserer Stadt verringern helfen.

Gefördert durch
Lage des Projektgebietes Grünzug Gehestraße im Gebiet Dresden-Nordwest
Lage des Projektes "Grünzug Gehestraße" (rot) in der Gebietskarte Dresden-Nordwest

Ausgangslage:

Mehr Grün für die Leipziger Vorstadt/Pieschen

Momentan laufen die Vorbereitungen für eine neue Grünfläche an der Gehestraße. Im Zuge der Bebauung des östlichen Bereiches mit dem Schulcampus Pieschen, soll im Westbereich entlang der Gehestraße ein 30 Meter breiter und 550 Meter langer öffentlicher Grünbereich entstehen.

Bisher war diese Fläche Bestandteil des ehemaligen Containerbahnhofs Erfurter Straße und war durch eine großflächige Versiegelung durch Schotter-, Beton-, Pflaster- sowie Asphaltflächen sowie durch Restbebauung der alten Bahninfrastruktur geprägt. Vereinzelt wurde die Brache bisher durch Gewerbenutzung sowie seit 2008 durch eine Kultureinrichtung des Vereins GEH8 Kunstraum und Ateliers e. V. genutzt.

In den Stadtteilen Pieschen und Leipziger Vorstadt besteht ein hohes Defizit an Grün- und Freiflächen, welches mit der gegenwärtigen Entwicklung weiterer Wohnstandorte noch akuter wird. Die Stadtteile gelten weiterhin aufgrund Ihrer Stadtstruktur - Gründerzeitbebauung mit wenig Grün und Freiflächen- als stark überwärmte Bereiche.  

Um die rechtlichen Voraussetzungen für den Schulcampus sowie des Grünbereiches zu schaffen, wurde der B-Plan Nr. 3001 erarbeitet und mit Satzungsbeschluss durch den Stadtrat am 10. Dezember 2015 beschlossen. Unter anderem wurde im Bebauungsplan eine Verbesserung der innerstädtischen Grünvernetzung festgehalten. Durch Sicherung und Herstellung begrünter Freiflächen und die Minimierung von versiegelten Flächen sollen sich ausgeglichene klimatische Verhältnisse entwickeln.

Der „Weg“ zur Maßnahme:

Im Vorfeld der Planung erfolgte eine intensive Bürgerbeteiligung:

Am 1. September 2016 fand in den Räumen des GEH8 Kunstraum und Ateliers e.V., Gehestraße 8, 01127 Dresden eine Planungswerkstatt statt. Durch die Pieschner Bürgerinnen und Bürgern wurden gemeinsam mit den Mitarbeitern des Stadtplanungsamtes sowie des beauftragten Planungsbüros arbos die Nutzungsinteressen für diesen Grünzug ausgelotet.

Die Teilnehmer/-innen konnten im Rahmen einer Planungswerkstatt, welche in den Räumen des Kunstvereins GEH8 stattfand sich mit dem Gebiet auseinandersetzten, eigene Ideen bezüglich der Nutzungswünsche, Gestaltung und Ausstattungen einbringen. Vorhandene Grundlagen, wie der B-Plan 3001 und städtebauliche Konzepte wurden als Planungsvorgaben zur Verfügung gestellt.

Das Ergebnis der Bürgerwerkstatt kann als Zusammenfassung hier eingesehen werden. 

In der Auswertung und Zusammenfassung der von den Bürgern/-innen erarbeiteten drei Entwürfe wurde vom Planungsbüro arbos folgenden Programmvorschlag zusammengefasst, welcher die gewünschten Nutzungswünsche der Bürger/-innen darstellte und grob verortete.

 Bürgerwerkstatt

Die Planungswerkstatt war wichtige Voraussetzung und Leitfaden bei der anschließenden Abstimmung aller beteiligter Ämter zur konkreten Planung der Grün- und Freifläche. Sie trug dazu bei Funktionen und Nutzungswünsche der Bürger/-innen zu ermitteln und räumlich zu verorten. Die Ergebnisse der der weiterführenden Planungen wurden den Bürgern am 16.01.2018 im Ortsamt Pieschen vorgestellt („Dokumentation zur Bürgerversammlung 16.01.2018“)

Ziel der Maßnahme:

Ziel der Planung ist die Entwicklung einer hochwertigen Grünanlage für den Stadtteil Dresden-Pieschen, die das Gebiet aus städtebaulicher Sicht aufwerten soll. Die Grünanlage soll künftig eine hohe Aufenthaltsqualität bieten und die Umweltsituation verbessern.

Gleichzeitig besitzt die Grünanlage durch die Anlage eines Geh- und Radweges eine wichtige Erschließungsfunktion für den Schulkomplex und dient als Puffer zwischen der Schulfunktion und dem Wohnbereich an der Gehestraße.

Kurzbeschreibung

Im Entwurf der Grünanlage stellt die lineare Baumallee mit ihrem Alleecharakter zusammen mit dem Fuß- und Radweg das Bindeglied zwischen der öffentlichen Grünfläche und dem Schulareal dar. Sie betont die Sichtachse zwischen Eingangsbereich der öffentlichen Grünfläche und dem sog. Balkon am nordwestlichen Ende des Fuß- und Radwegs. Sie ist somit zentrales Element des Grünzugentwurfs, der mit seinen parkartigen Strukturen den Festsetzungen des Bebauungsplans Nr. 3001 entspricht.

Im Park wird entlang der Wege eine energiesparende öffentliche LED-Beleuchtung installiert.

Prägende Gestaltungsmittel sind die geborgenen bzw. noch vorhandenen Altmaterialien wie Pflaster, Poller, Betonbänder und Rampen sowie Mauern, welche weiterhin über die Geschichte der Fläche Auskunft geben und indentitätsprägend sind. Dies war auch ein oft geäußerter Wunsch der Einwohner bei der Planerwerkstatt.

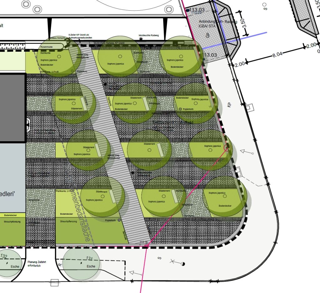
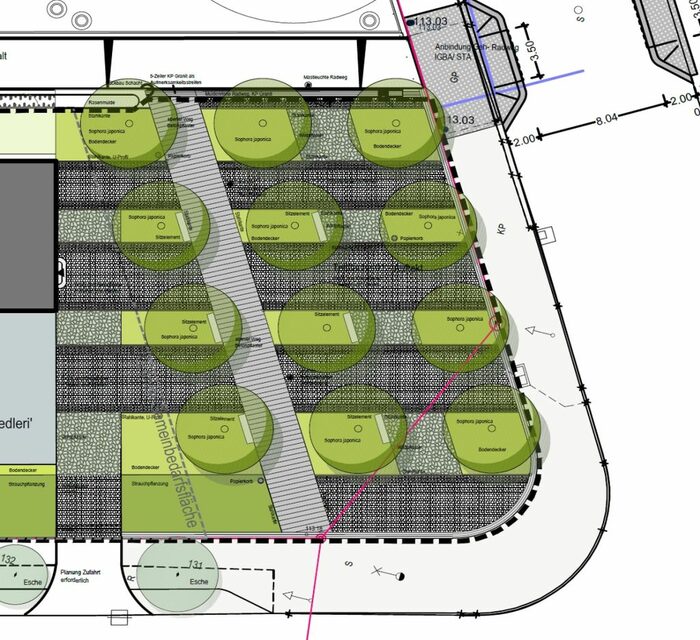
Aufgrund der linearen Gestaltung der Fläche sowie durch die unterschiedlichen Nutzungsansprüche wird die Fläche in acht unterschiedliche Funktionsbereiche untergliedert: 

  • Teilfläche 01 – Auftakt, Vorplatz
  • Gemeinbedarfsfläche 01 – Süd, Gebäude Gehestraße 15
  • Teilfläche 02 – „Treffpunkt“
  • Gemeinbedarfsfläche 02 – Geh8
  • Teilfläche 03 – Bürgergarten
  • Teilfläche 04 – „Spielband“
  • Teilfläche 05 – Naturnaher Bereich, Grillplatz
  • Teilfläche 06 – Platz am Treppenaufgang

Folgende Maßnahmen sind in den Teilflächen vorgesehen:

Stand

Gegenwärtig befindet sich die Planung im Übergang von der Ausführungsplanung hin zur Vorbereitungen der Ausschreibungen. Der Fördermittelantrag wurde im September 2018 bei der Sächsischen Aufbaubank gestellt.

Ziel ist es, nach Erhalt des Fördermittelbescheides Anfang 2019 die Arbeiten öffentlich auszuschreiben. Baubeginn wird dann je nach Stand der Arbeiten an dem Schulkomplex gegen Mitte/ Ende 2019 erfolgen. Als vorbereitende Maßnahmen zur Baufeldfreimachung werden Abbruch und Entsiegelungsmaßnahmen bereits im Frühjahr 2019 erfolgen. Diese Abbruchmaßnahmen sind Gegenstand einer separaten EFRE-Fördermaßnahe. 

Steckbrief 

Projekt:

Park an der Gehestraße
EFRE Stadtteilentwicklungsprojekt Dresden-Nordwest
im Handlungsfeld „Energieeffizienz“

Vorhabensträger:

Landeshauptstadt Dresden

Förderzeittraum:

2018 - 2021

Kostenrahmen:

1.486.505 Euro Gesamtkosten
(davon: 80% Fördermittel, 20% Eigenmittel der Stadt)

Förderung mit EFRE-Mitteln:

1.189.204 Euro (beantragt)

Eigenmittel der Stadt:

297.301 Euro

Zustand der Brache 2016

Anzeige

Partner