|
Landeshauptstadt Dresden - www.dresden.de https://www.dresden.de/de/rathaus/aemter-und-einrichtungen/unternehmen/stadtarchiv/veranstaltungen/veranstaltungen-info.php 23.11.2023 12:46:31 Uhr 30.01.2026 07:15:41 Uhr |
|
Informationen
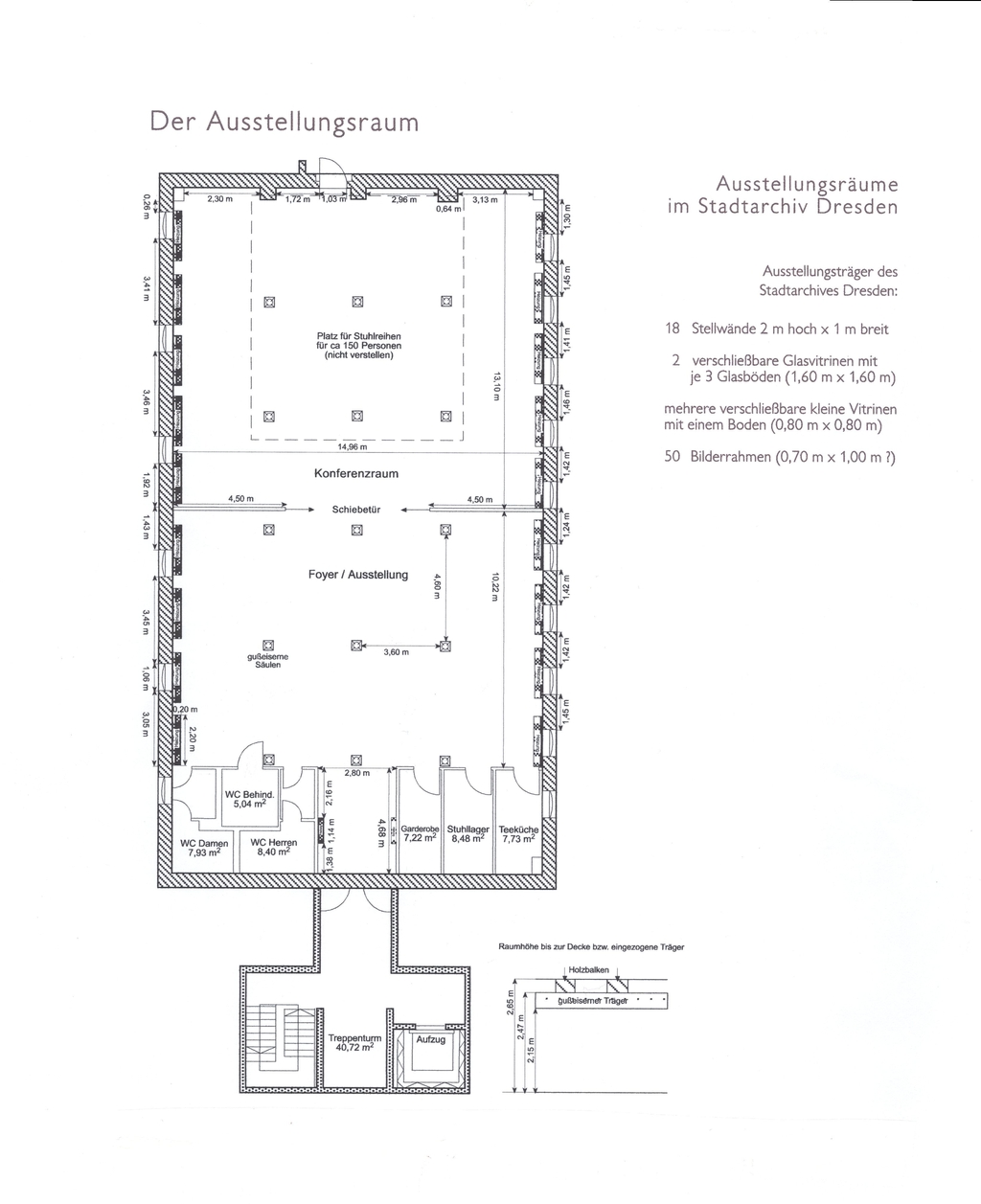
Das Stadtarchiv Dresden veranstaltet regelmäßig wissenschaftliche Seminare, Vorträge und Fachausstellungen zur Dresdner Stadtgeschichte. Der Konferenzraum im dritten Obergeschoss bietet für diese öffentlichen Veranstaltungen bis zu 150 Plätze. Neben der Exposition von Archivalien können zudem Kunstausstellungen sowohl im Galeriebereich als auch im Treppenhaus präsentiert werden. Das Archiv wird somit zum Podium für Wissenschaft, Kunst und Kultur in Dresden.